无障碍阅读:
后退
刷新
纯文本通道
页面放大
页面缩小
文字放大
文字缩小
原色
主题黑
主题蓝
辅助线
帮助
消费者
求职者
传媒者
合作者
首页
关于我们
新闻中心
客户服务
互动交流
信息公开
信息公开
主动公开信息内容
国网四川省电力公司简介
办理用电业务程序及时限
供电企业电价和收费标准
供电质量和两率情况
供电服务相关法律法规
服务承诺及投诉电话
用户受电工程相关信息
12398能源监管热线
四川省纳入国家财政补贴规模户用光伏项目公示
代理购电有关事项公告
依申请信息公开内容
信息公开指南
首页
>>
信息公开
>>
主动公开信息内容
>>
用户受电工程相关信息
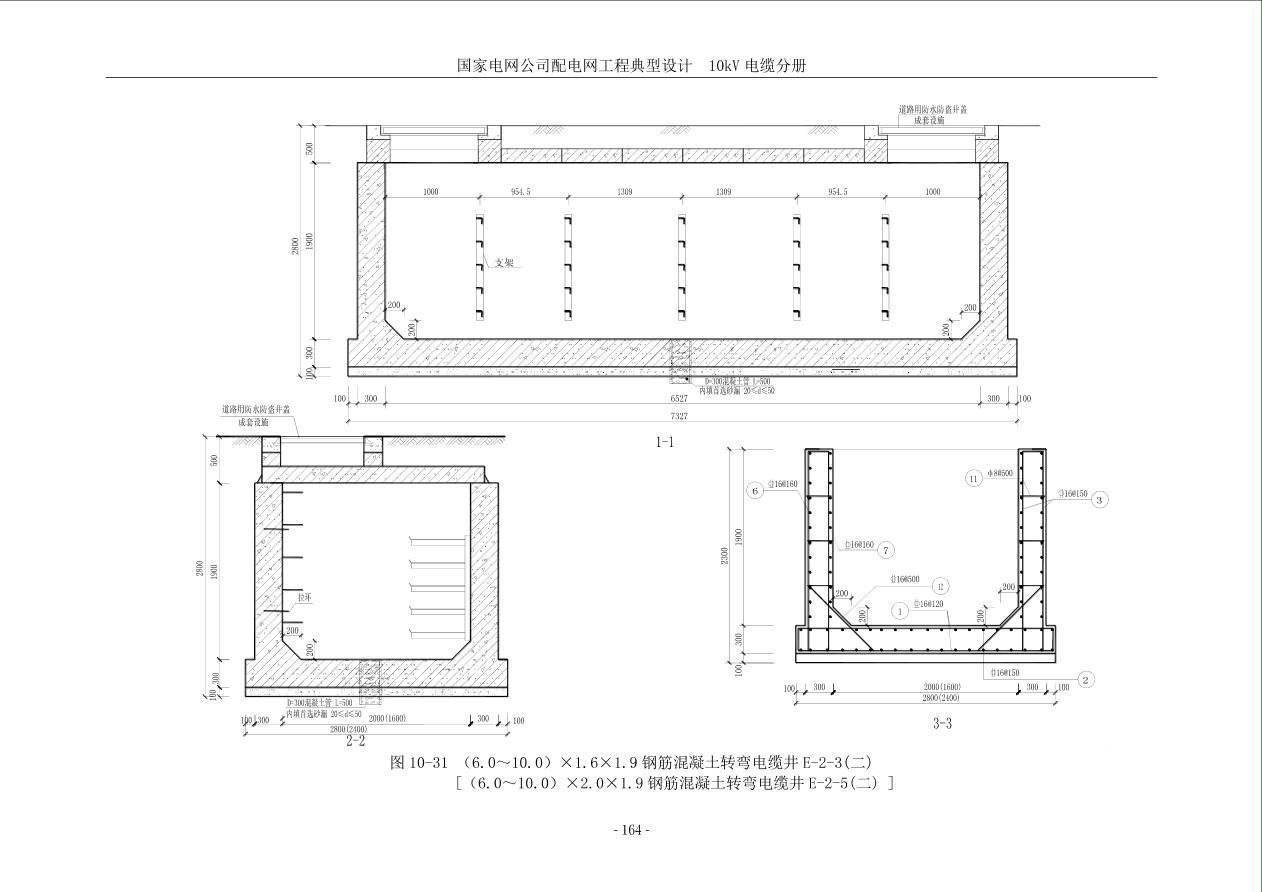
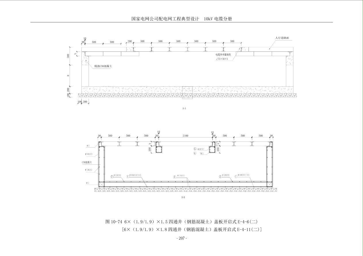
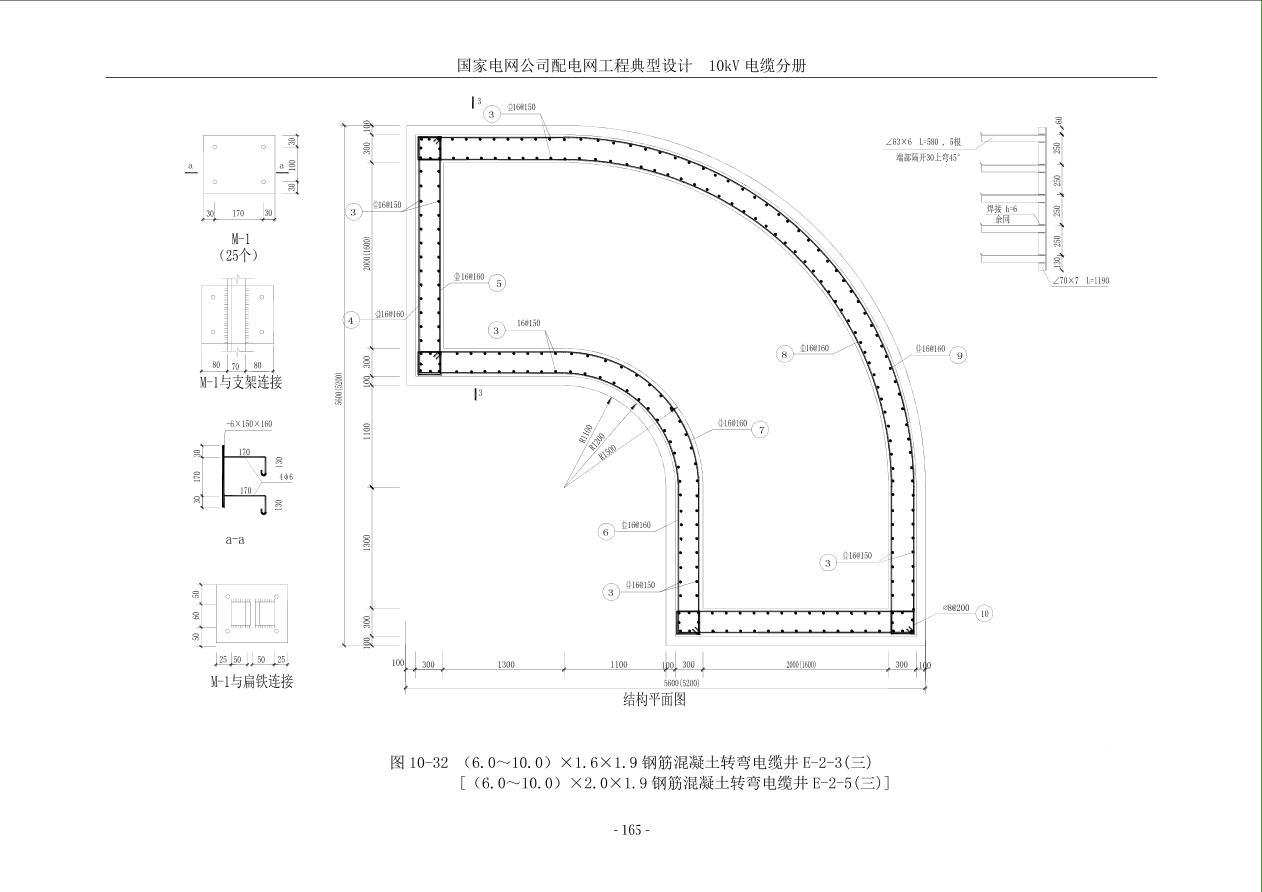
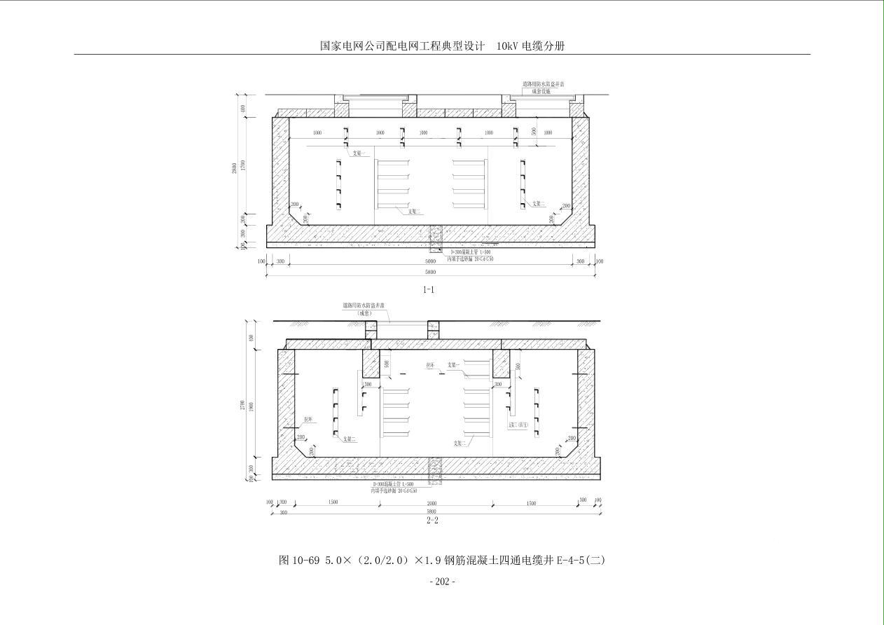
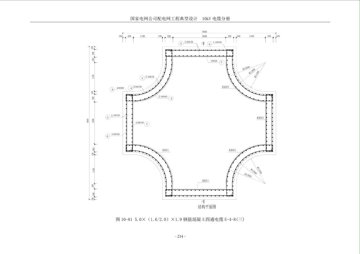
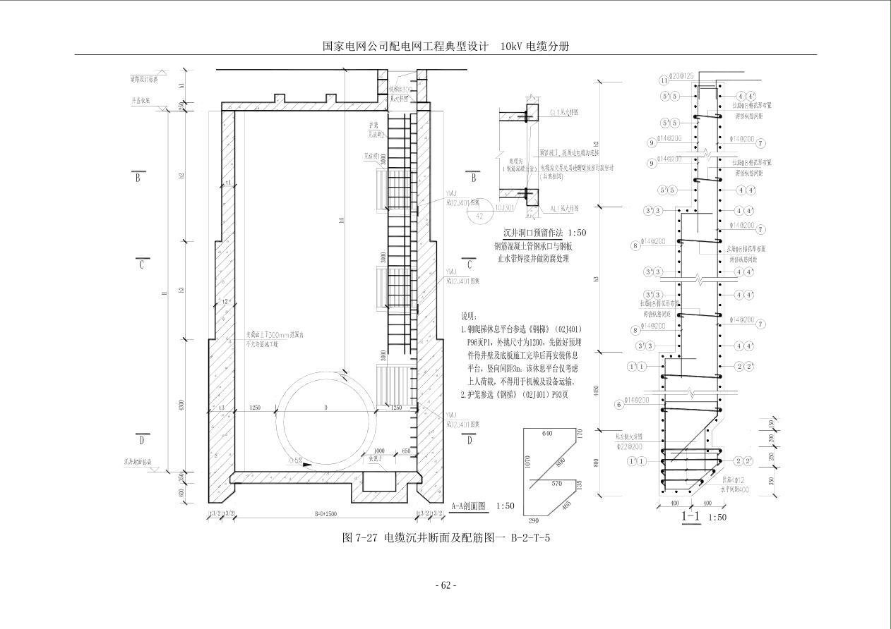
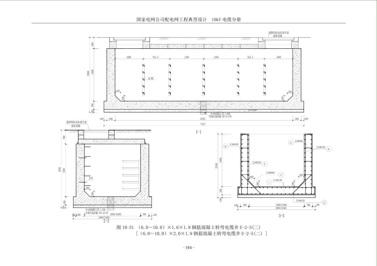
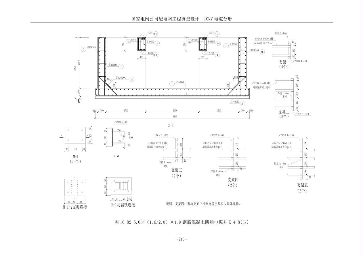
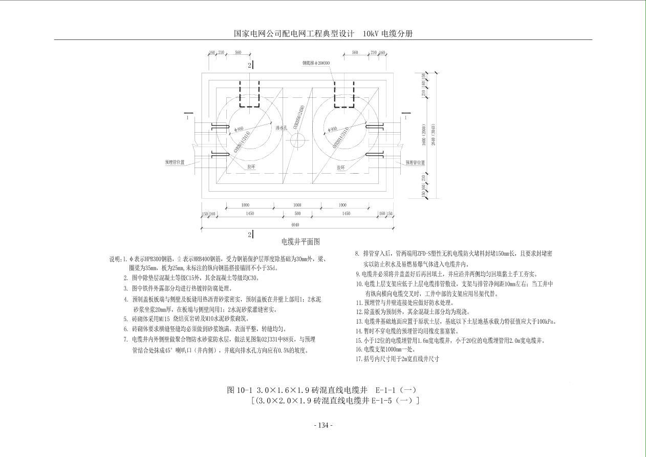
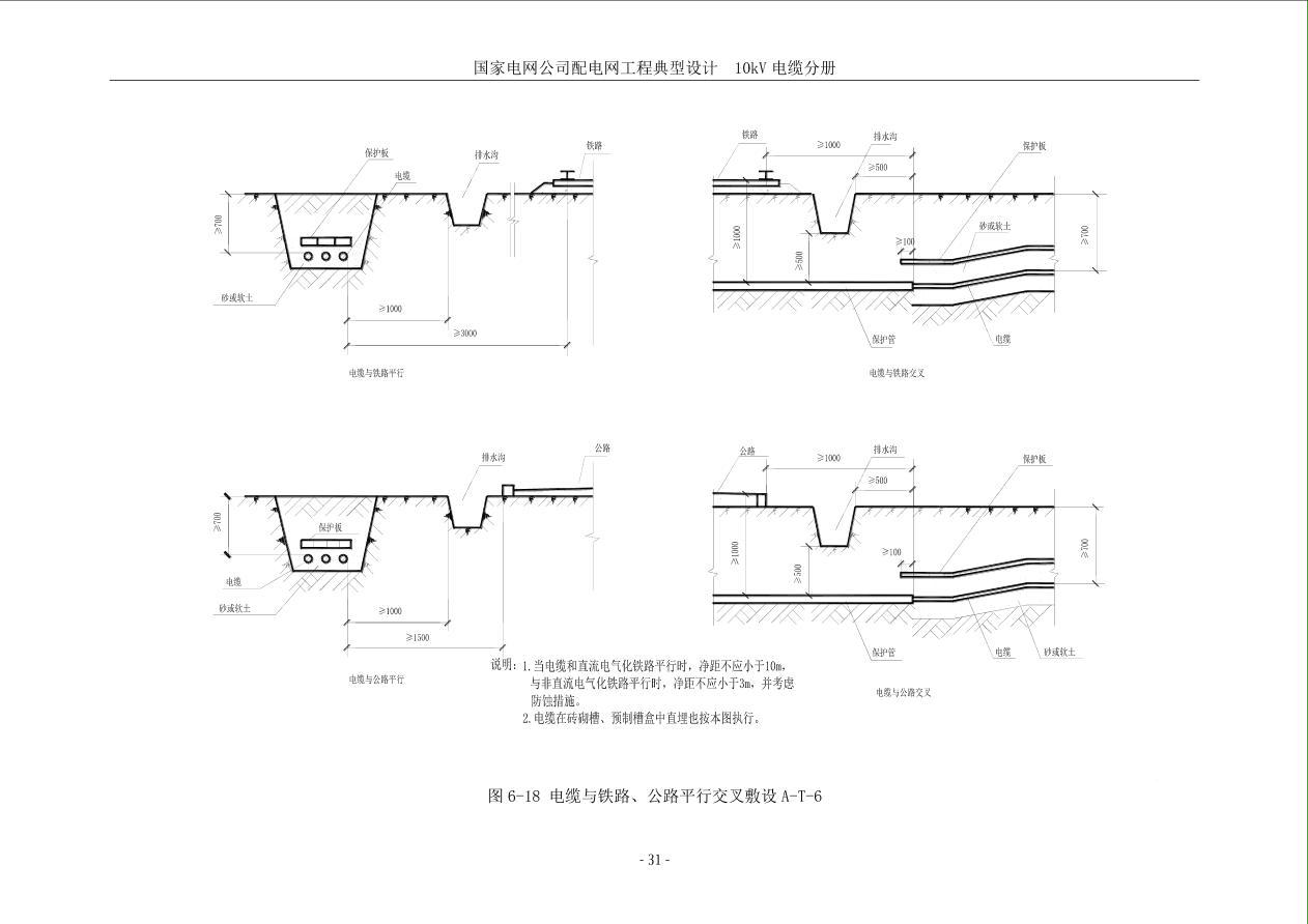
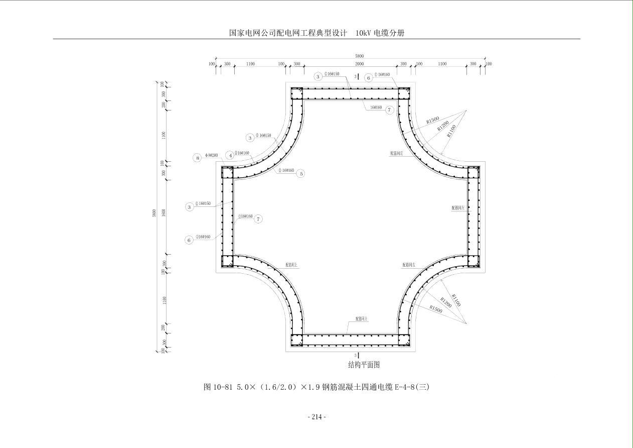
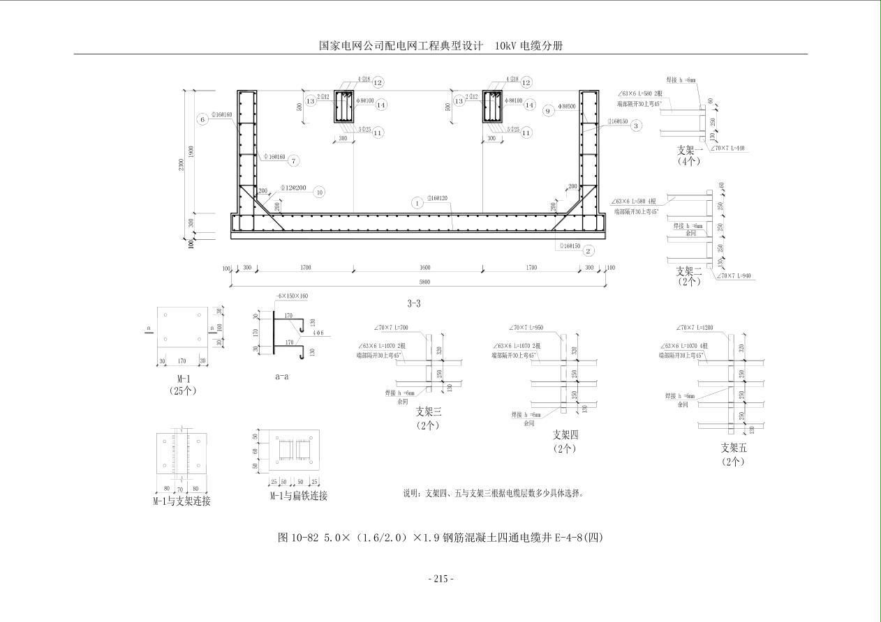
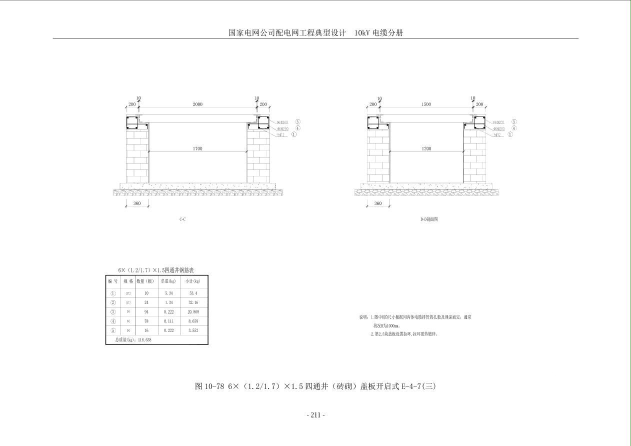
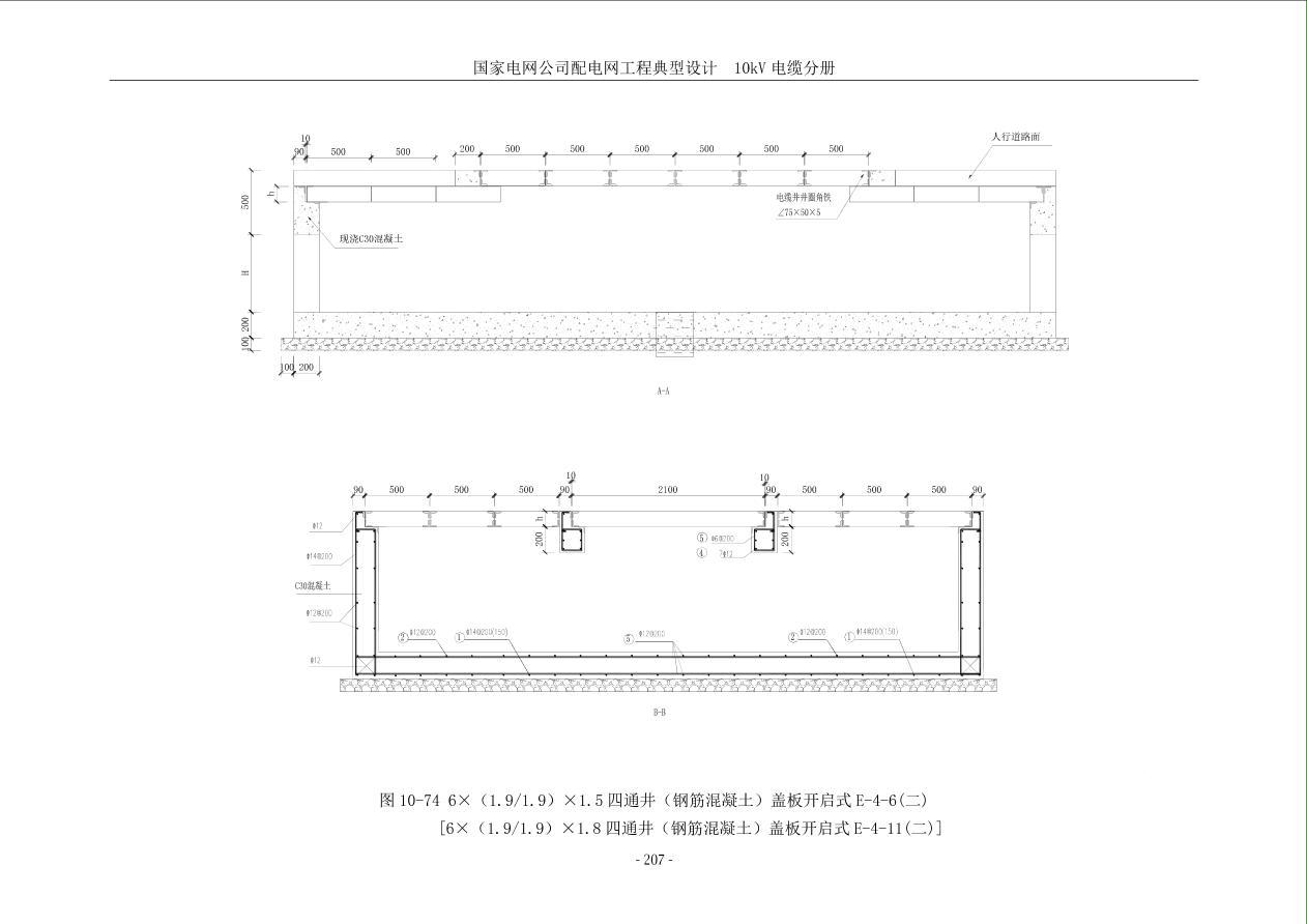
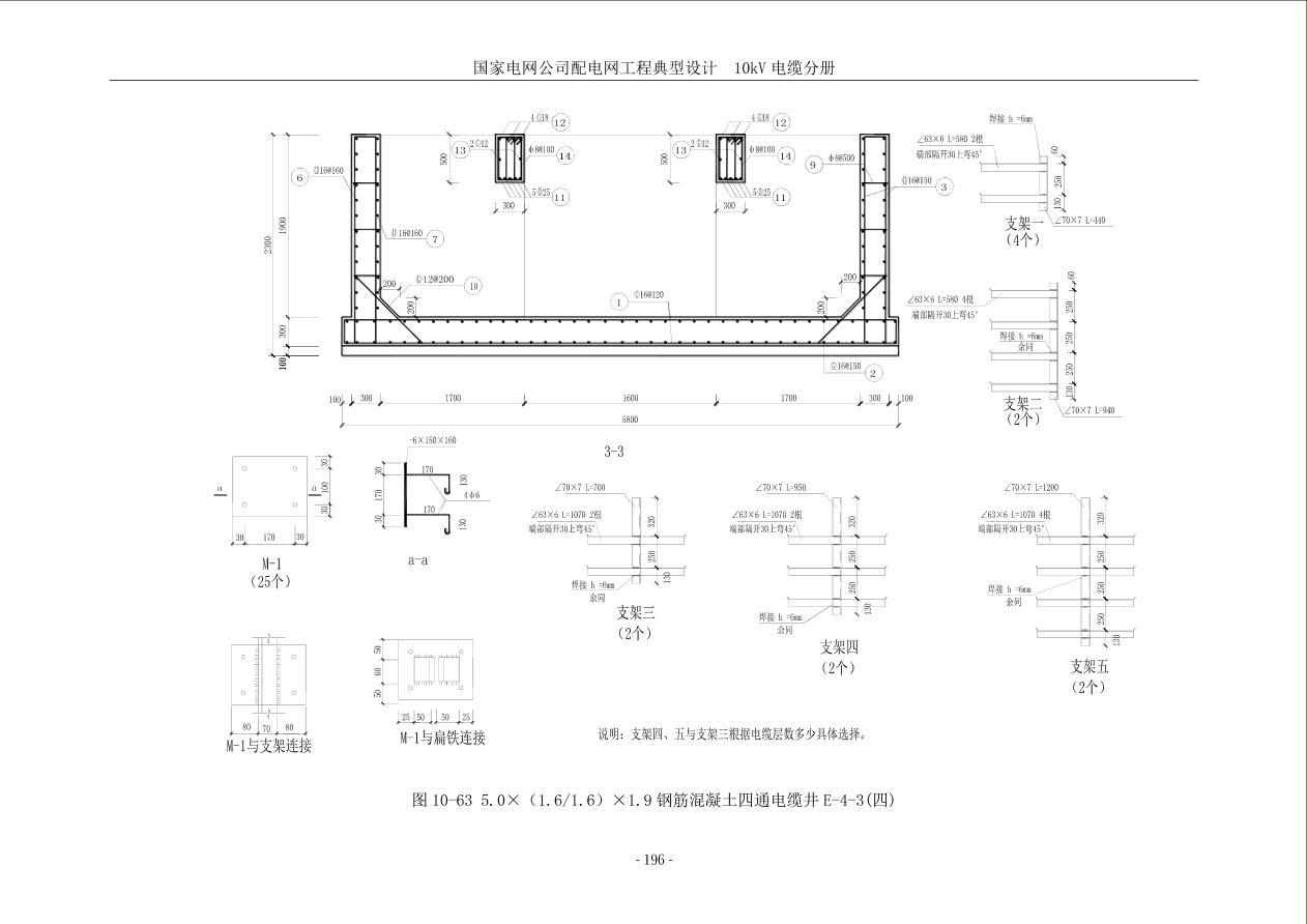
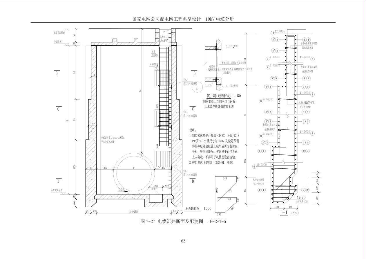
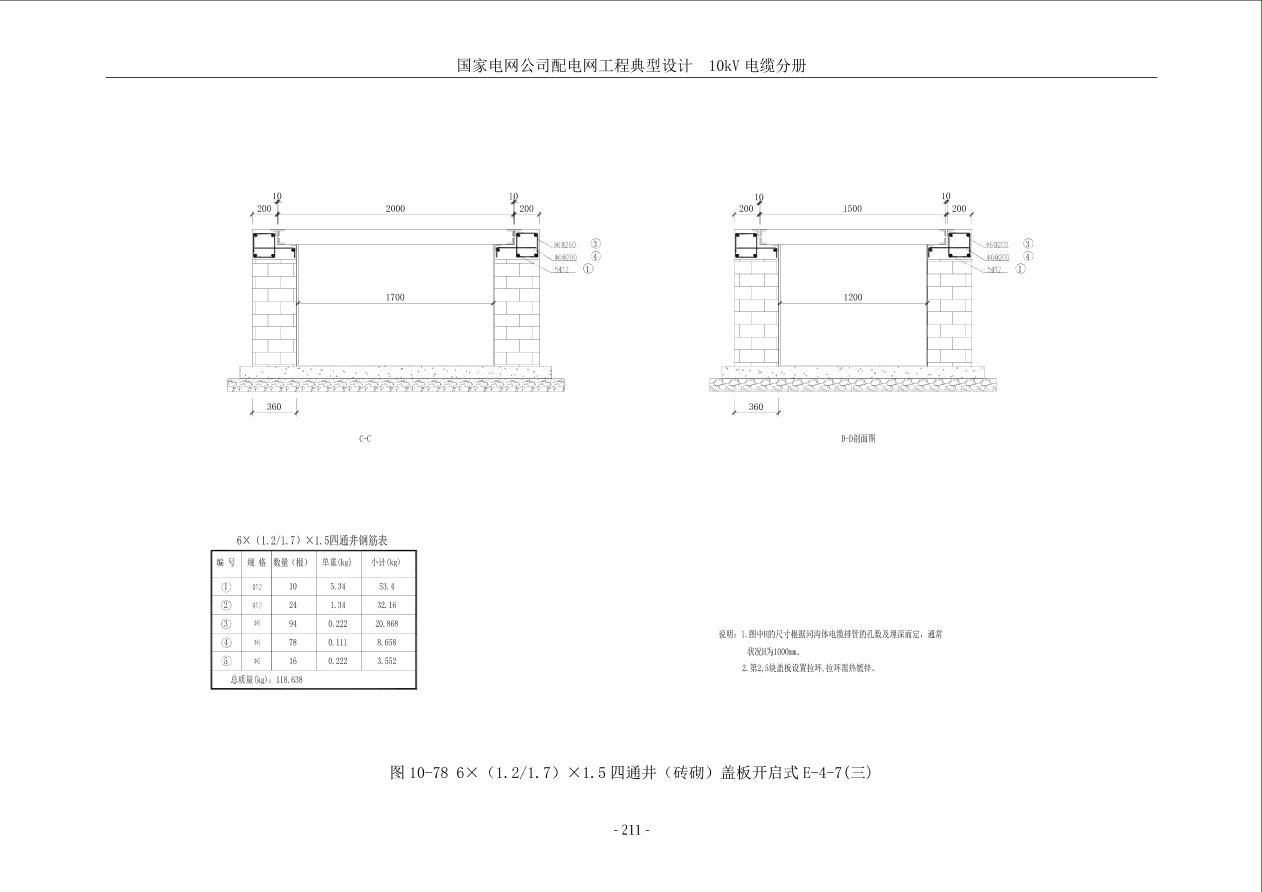
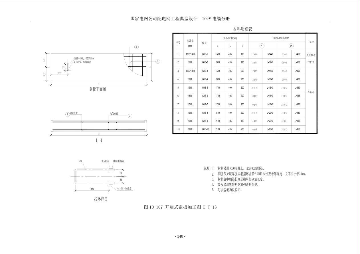
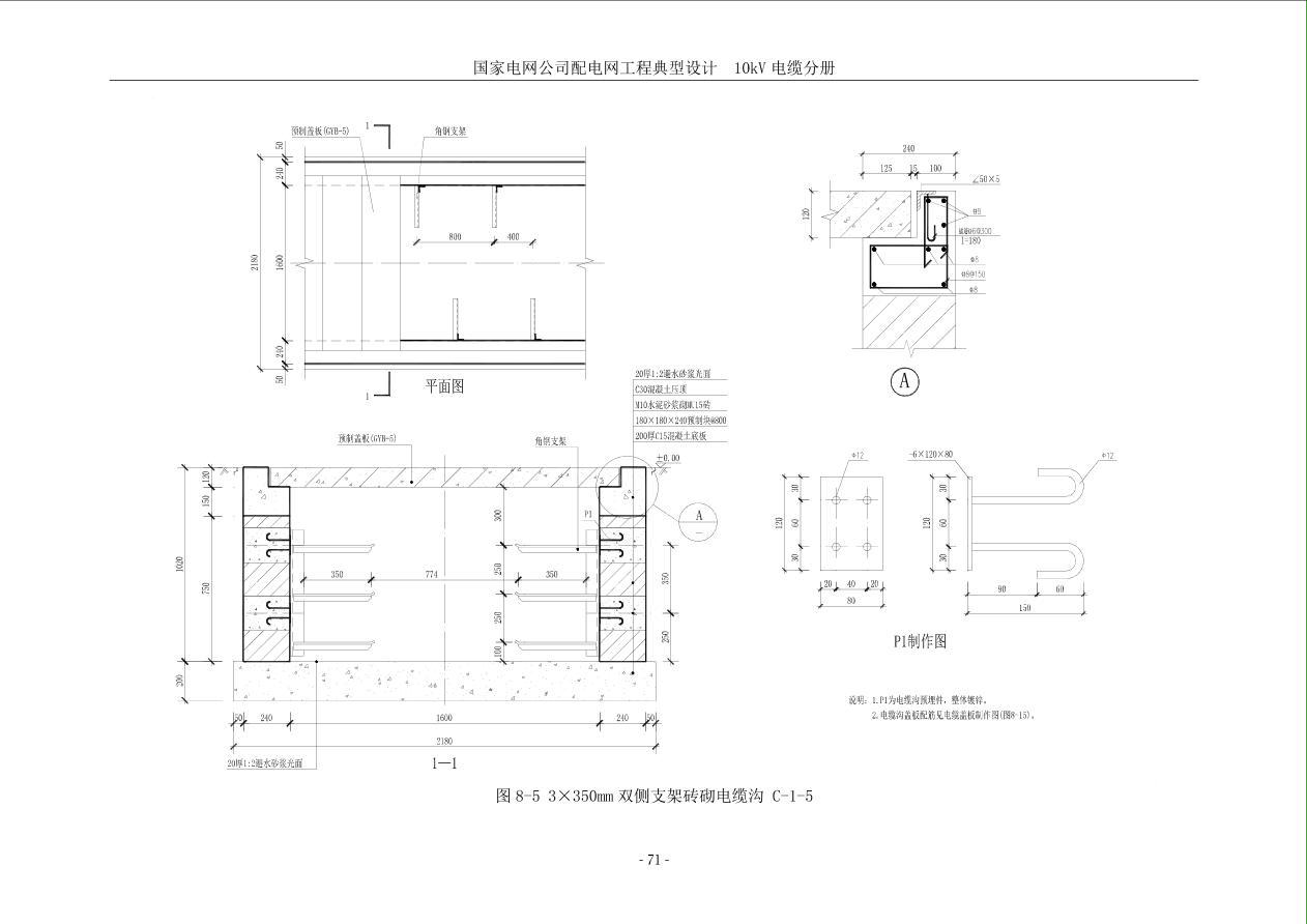
配电网工程典型设计10kV电缆分册
发布日期:
2022-07-28
上一张
下一张
相关链接